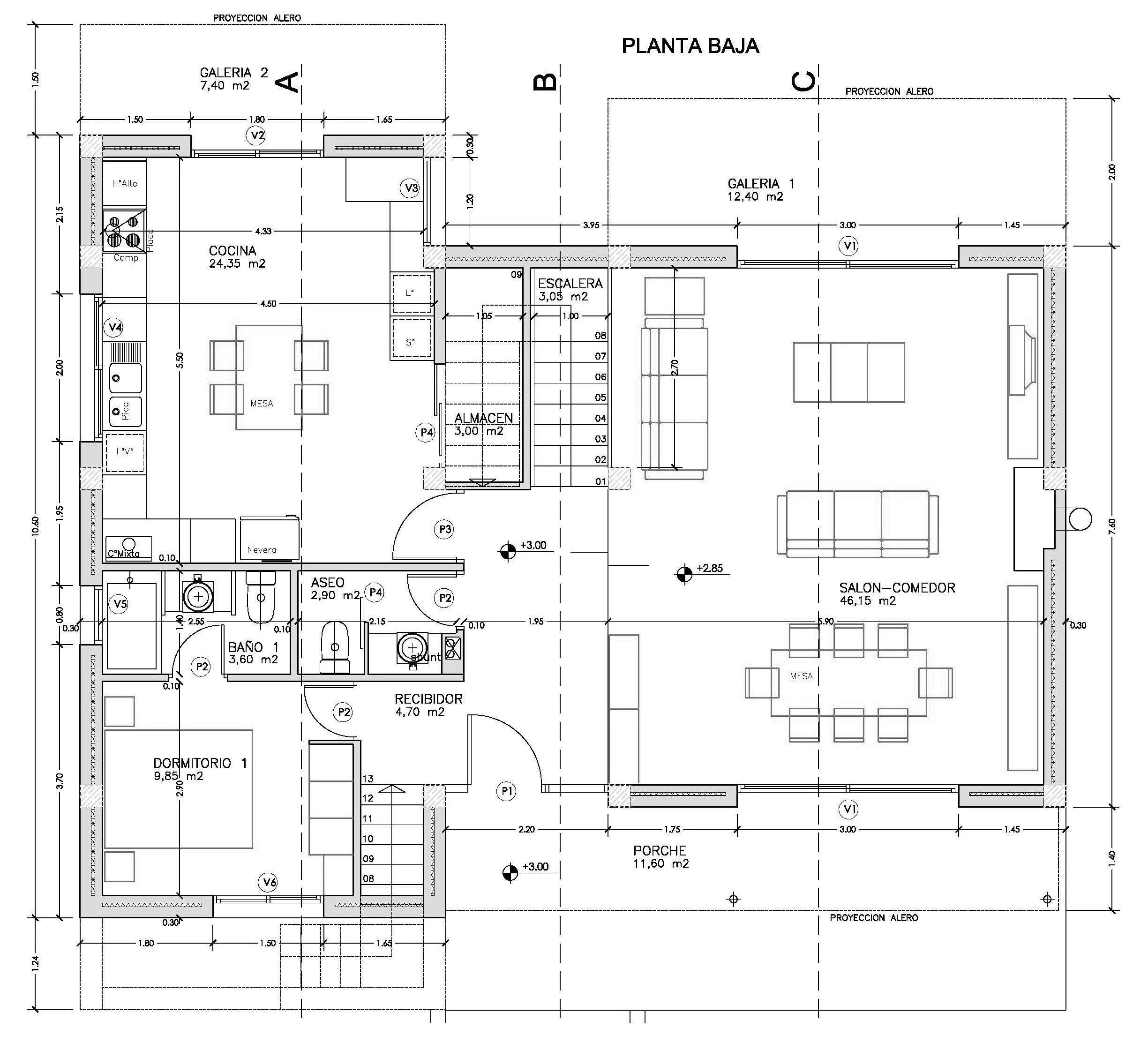
CASA VALL
VALLROMANES
Obra nueva. Vivienda unifamiliar aislada con piscina ubicada en Vallromanes, Vallés Oriental.
Se caracteriza por sus formas geométricas simples y bien definidas.
Una de las premisas del proyecto consistió en incorporar madera de ipé tanto para la tarima de la piscina como para el revestimiento de la fachada, buscando la armonía del conjunto, quedando como resultado una casa funcional y elegante mimetizada con el entorno.

